- Inicio
- Compensador Estático de VARs (CEV)
- Compensador Estático de VARs para industrias
Compensador Estático de VARs para industrias

TY Steel Co. Ltd es uno de los mayores productores de acero en Tailandia. Esta compañía cumple con las normativas de su propio país y también cubre las necesidades de los mercados del Sudeste Asiático. Con el incremento de su mercado, TY Steel comenzó un proyecto de expansión de su compañía y decidió instalar otro horno de arco eléctrico (55MVA + 20% Sobrecarga) además de un horno cuchara adicional (12MVA) con el propósito de subir su producción al doble. Para alimentar estos equipos se dispuso de un transformador nuevo de 115kV/35kV a 80MVA. A pasar de que los hornos de arco eléctrico son idóneos para la fabricación de aceros de alta calidad, no puede negarse que también generan diferentes problemas en la red eléctrica de la planta tales como factor de potencia bajo, armónicos elevados, fluctuaciones de voltaje, flicker y desequilibro de voltaje.
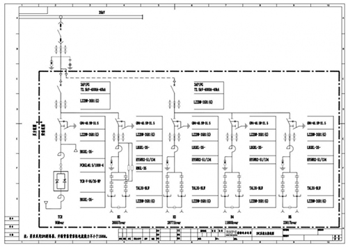
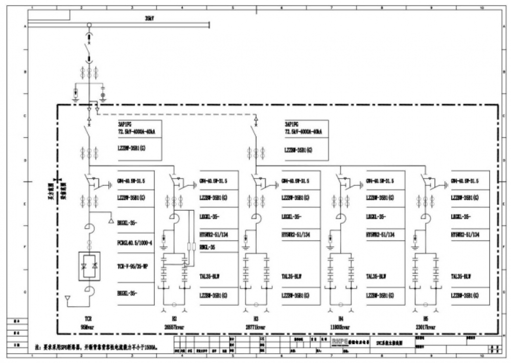
Después de una ardua inspección, RXPE recomendó un sistema SVC con características de -5Mvar (ind) a +90Mvar (cap). Se diseñaron cuatro terminales con filtro, 2/3/4/5 para aliviar la distorsión de los armónicos de los hornos de arco eléctrico y del horno cuchara, así como de la terminación de TCR. Todas estas terminales se conectaron a la misma barra colectora 35kV de los hornos.
A pesar de estar bien diseñadas las estructuras del equipo SVC, no se contaba con el espacio adecuado para su instalación. Ante este nuevo desafío, RXPE evaluó la posibilidad de un diseño de dos capas/niveles. Las terminales TCR/2/3 FC se dispusieron en el primer nivel (piso) mientras que las terminales 4/5 FC se colocaron en el segundo nivel (techo).
Esta estructura abierta se diseñó cuidadosamente con altura suficiente y consideraciones estructurales especiales para evitar el calentamiento eléctrico-magnético de las barras de acero dentro de estas estructuras.
Las válvulas de tiristores ETT en la terminal TRC cuentan con método de refrigeración por agua. Es sistema control y protección RXPE-11A ha adoptado nuestro algoritmo de compensación patentado (en combinación con los controles de apertura y cierre de circuito) dando como resultado tareas de compensación precisas y a alta velocidad.
El compensador estático de VAR para la planta siderúrgica TY se finalizó y puso en marcha en 2017. Gracias a nuestras soluciones, esta compañía ha elevado consistentemente su productividad en los hornos recientemente instalados, además ha cumplido con todas las normativas de potencia que exigen las autoridades tailandesas.



