- Inicio
- Compensador Estático de VARs (CEV)
- Compensador Estático de VARs para industrias
Compensador Estático de VARs para industrias

Chien Shun Steel es una de las empresas líderes de producción de acero en Taiwán. Con el propósito de incrementar significativamente su producción, decidieron incrementar la capacidad de su horno de arco eléctrico (78MVA). El horno nuevo es alimentado por un transformador de energía161kV/22.8kV a 90MVA. Anteriormente, este horno había ocasionado bastantes problemas en la red eléctrica tales como armónicos, fluctuaciones de voltaje, flicker y desequilibrios de voltaje.

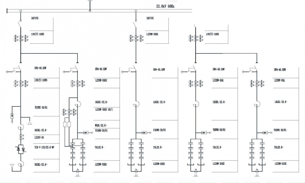
Luego de examinar completamente este caso, RXPE propuso la instalación de un compensador estático de VAR (SVC) de 115Mvar conectado a la barra colectora 22.8kV del horno de arco eléctrico para resolver todos los problemas relacionados con la calidad de la potencia. Asimismo, durante la fase de diseño, se tuvo en consideración un margen de capacidad considerable para la expansión de cargas en un futuro, de acuerdo a los requerimientos del cliente.
El sistema SVC se clasificó de la siguiente manera: de -8Mvar (inductor) a + 5Mvar (capacitor). Se diseñaron cuatro divisiones para filtros, 2/3/4/5 de acuerdo a los armónicos de la carga. El filtro de armónicos 2 fue diseñado como tipo C con el objetivo de reducir la perdida de energía activa.
Las válvulas de tiristor ETT se diseñaron con sección TCR y adoptan enfriamiento por agua.
El último de nuestros desarrollos, el sistema controlador SVC -11A C&P de RXPE ha adoptado nuestro algoritmo de compensación patentado (en combinación con los controles de apertura y cierre de circuito) que realiza tareas de compensación precisas y a alta velocidad. La experiencia del usuario se ha mejorado gracias a la implementación de las funciones de encendido/apagado con solo pulsar un botón. Además se han integrado funciones de sincronización de eventos, control secuencial, interbloqueo, entre otras.
El proyecto de compensador estático de VAR (SVC) que diseñamos para Chien Shun Steel se finalizó y puso en marcha en 2018. Gracias a nuestras soluciones, esta planta siderúrgica ha incrementado positivamente su nivel de productividad ya que todos los problemas de la red eléctrica se han resuelto en su totalidad. La siguiente gráfica muestra las lecturas hechas antes y después de nuestro proyecto, y puede verse claramente que se han mitigado los problemas de flicker hasta en 50%, el cual es el nivel máximo teórico probado de los compensadores estáticos de VAR. En otras palabras, nuestros sistemas liberan todo su potencial cuando son exigidos al máximo.



